Key features of the Haig Park Community Centre designs

Integrated with the landscape

  • The centre is intended to open out to the landscape, extending into a semi-covered courtyard, which bridges the indoor spaces and surrounding park spaces.
  • An irrigated ‘village lawn’, nature play space for toddlers, an entry/gathering area as well as outdoor meeting spaces are proposed as integral elements of the ‘village type’ design for the community’s enjoyment.
  • The centre integrates with the parkland and can serve as a setting for a range of events during the day and evenings, including a small performance space facing onto the park.

Activating the park and building community

  • The building will be a key ‘activator’ in the park, supporting community connections and improving safety through passive surveillance, with internal lighting that transforms the centre into a beacon, or lantern, drawing people in from the park.
  • By providing a destination within the park, the centre will foster a sense of belonging and community stewardship of the park.

Working with the park’s heritage and sustainability

  • This location aligns with the Haig Park Conservation Management Plan, complementing and respecting the heritage value of the trees and park.
  • Applying adaptive reuse and placemaking principles, the former depot building is being re-purposed as a meeting / wet workshop space as part of the Authority’s sustainability initiative.

Site layout and landscaping

aerial map of site
New outdoor plaza
Outdoor workshop area
Landscape nodes
New lawn irrigated with harvested rainwater
New entry connection to outdoor plaza and building
Former depot building refurbished as wet workshop
Proposed building with multipurpose rooms
Potential nature play space

Key features of the landscaping

  • New outdoor plaza and outdoor workshop area
  • Landscaping nodes that may include decomposed gravel paving with BBQ, picnic setting, drinking fountains, bike racks and bench seating
  • New lawn irrigated with rainwater harvested from roof
  • New entry connection to outdoor plaza and proposed buildings
  • Refurbished existing depot building as wet workshop
  • Proposed building with multipurpose rooms
  • Potential nature play space

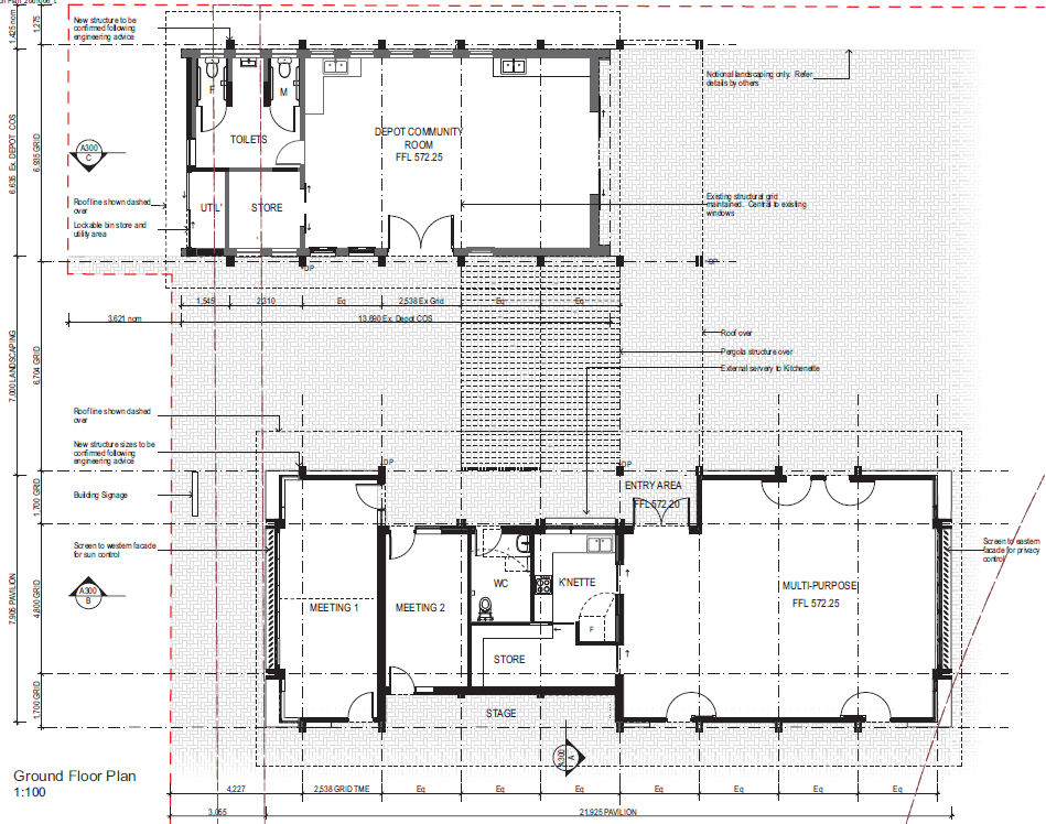
Building design

map of proposed building
Workshop wet area
Utility room with bin storage
Storeroom
Ambulant toilets
Pergola connecting buildings
Roof connecting buildings
Servery
Multipurpose room
Kitchenette
Small meeting/consultation room
Small meeting/consultation room
Storeroom
Accessible toilet

Key features of the building design

North building

  • Workshop wet area
  • Utility room with bin storage
  • Storeroom
  • Ambulant toilets
  • Pergolas connecting buildings

South building

  • Servery
  • Multipurpose room
  • Kitchenette
  • Storeroom
  • Small meeting/consultation rooms
  • Accessible toilet
  • Informal stage area

How to have YourSay

To share your thoughts, please answer a few questions by 5pm on Thursday 26 November.